Last Thursday night, Quebec’s Ministry of Transport informed the public that their plans for the green belt between the St. Jacques Escarpment and the train tracks next to Highway 20 must be modified.
The Ministry wants to cut down roughly 500 trees before the spring bird migration. They also want to build a maintenance road up the escarpment, create two rows of drainage pits and add storm sewers. Their aim is to turn the entire green band into a giant backfill to make sure that the Saint Pierre River doesn’t flood onto the highway and beyond.
You can watch the entire PowerPoint presentation here.
A map from Montreal’s water department details the plans more precisely. It also shows the entire Saint Pierre watershed.

Officials from the Ministry of Transport say that the revised plans for the Saint Jacques Escarpment and green band are necessary. They discovered that the water table is higher than originally thought during the 2018 consultations.
If things changed that fast in two years, what’s to say they won’t keep changing? The current approach is little different than 200 years ago.
A much bigger vision needs to happen.
Original Plan
Two years ago, Montreal presented a bold plan for the entire region. They described it as a “completely new nature-park in the heart of the city.”
Check out Transformation of the Turcot Yards, the Montreal publication that began the consultation to see the original vision for the St. Jacques Escarpment and the old Turcot Yards together. They promised to create a protection plan for the territory.
I didn’t realize that the city plans to link St. Jacques Street with the canal until I reread this piece. Perhaps that explains the road?
City Approvals
Montreal officials held several extraordinary meetings to approve the revised plans.
The borough of Côte-des-Neiges–Notre-Dame-de-Grâce approved them Thursday afternoon; the borough of Sud-Ouest approved them Friday.
Montreal’s executive committee will probably approve them next week so that the Quebec Ministry of Environment can authorize the project to enable the work to get done before the holidays.
What’s the rush? And why does the St. Jacques Escarpment have to be damaged again? For a protected space, it doesn’t get much protection.
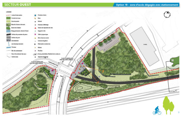
St. Jacques Green Band Plans
The green space at the foot of the St. Jacques Escarpment will no longer contain a stream, a pedestrian trail and an accessible viewing platform in the centre.
The Quebec Ministry of Transport will build a multi-use path through the territory as proposed during the 2018 consultations. They also plan to build new bike paths on Notre Dame West and on Pullman to link St. Jacques Street with the Lachine Canal bike path so that the space can open to the public as of spring 2022.
To see in detail what’s changed, here’s a side-by-side comparison of the 2018 consultation presentation and the one last week.
West side

2020 
2018
Centre section

2020 
2018
East side

2020 
2018
St Jacques Escarpment Indignities
Little protects the escarpment’s natural heritage. The Ministry of Environment has a bit of clout because the region is an eco-territory. When the Ministry of Transport cut down 200 trees in 2015, the Ministry required it to create a humid site at the base.
Montreal’s 2017 urban plan for the escarpment shows no conservation or ecological goals for the project. Instead, the city plans only to “regulate construction,” and “prevent security risks and infrastructure damage.”

In the same plan, the city defines the escarpment as a “building constraint and nuisance.”

Saint Pierre Indignities
This the the most recent of many indignities suffered by the Saint Pierre River since Samuel de Champlain cut trees next it in 1611 to establish a fur trade outpost.
The river began functioning as a sewer almost from that moment, and certainly after Ville Marie became established in 1642. The practice continues to this day.
Twenty years later, the Sulpiciens counted on the flowing St. Pierre River to irrigate crops in their Saint-Gabriel farm west of Ville Marie between current Notre Dame and Wellington streets. That farm continued until 1825, when the St. Gabriel Canal was built to connect Ville Marie to Lachine.
The trend to bury rivers so that they could be used for sewage and to prevent flooding began in 1832, whent they bricked in part of the St. Pierre River to become the William Collector.
The St. Pierre watershed source begins on Mount Royal with rivers and streams passing through Montreal West, Cote St Luc, Ville St Pierre, St Henri, Lasalle and Verdun to mouths near Pointe à Callière in Old Montreal and near Nun’s Island in Verdun.
Water used to flow over the escarpment then known as Notre Dame de Grace into a widened part of the St. Pierre that originally carried the name Lac St Pierre, and later became Otter Lake (Lac à la Loutre).
Over the following years, some St. Pierre River tributaries fed mills for the tannery steam engines and hydro electric operations. Others got integrated into Montreal’s waterworks system. Montreal buried most of the watershed in tunnels carrying freshwater or sewage below infrastructure or operations, like train yards.
By the time the CP built its Turcot Marshalling Yards, the one-time Lake Otter was a marsh. The company buried it below its operations, just as they did in Meadowbrook. If you want to see some great photos of the buried Saint Pierre River from Meadowbrook to the Lachine Canal, check out Andrew Emond’s underground river explorations.
Unfortunately, sewers often hide problems, rather than solving them. Over the years, fecal matter has contaminated fresh water in Kirkland, Montreal West, Pierrefonds-Roxboro, Nun’s Island and Medowbrook due to cross-connected sewage pipes.
These problems led the city to keep burying the River.
Two years ago, Montreal was ordered to bury or divert the last open vestiges of the Saint Pierre River in Meadowbrook.
Had the Ministry of Transport and Montreal used some imagination and forsight, the Turcot Interchange Project could have brought part of the Saint Pierre River out into the sun again.
Instead, they’re creating a modern version of the William Collector.







